zurück

Bunker 
allgemeines In der Strahlentherapie ist ein Bunker erforderlich, um die hochenergetischen Strahlen wirksam abzubremsen.
Wand Der Bunker besitzt dicke Wände, die mit Barytbeton, ev. auch Blei- und Stahlabschirmungen verstärkt sind, um eine Strahlenbelastung von Personal und Bevölkerung zu vermeiden.
Abschirmung Bei der Berechnung der Abschirmung muß die Dosisleistung und die Strahlrichtung des Beschleunigers sowie die Zahl der Betriebsstunden berücksichtigt werden.
Verstärkung Die höchste Absorption wird benötigt, wenn der Beschleuniger direkt auf eine Wand strahlt. Rechts und links der Längsachse des Beschleuniger muss deshalb die Wand verstärkt werden (siehe Aufrissplan unten). Unterhalb des Beschleuniger sind in der Regel keine Räume, so dass kein besonderer Strahlenschutz erforderlich ist. Wenn über dem Bunker keine Räume sind oder die Begehung verhindert wird, so ist kein besonderer Strahlenschutz erforderlich.
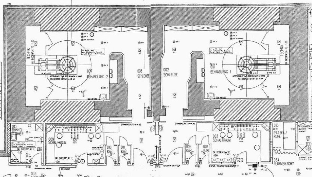
Labyrinth Durch einen gewinkelten Zugang wird die Strahlenbelastung an der Bunkertür reduziert. Anlage mit 2 Bunkern. Schraffiert: Barytbeton mit besonders hoher Absorption. Die Wände zwischen den Bunkern können dünner ausgelegt werden. Durch das Labyrinth ist die Bunkertür von Bestrahlungsgerät abgeschirmt. Gespart wurde auch bei der Bunkerdecke. Nachteil: Obergeschoss ist Sperrzone bei Bestrahlungsbetrieb.
ohne Labyrinth Erfordert ein ca. 1m dicke Bunkertor. Vorteile
  • Die MTRA kann vom Linac Tisch aus die Kabinen sehen
  • Kürzere Wege für die MTRA
  • Zugang mit Bett und Trage unproblematischer
Nachteile
  • Öffnung der Tore dauert etwas länger
  • Tür wiegt z.B. 25t (Maße 2,3 x 2,6 x 1,03 m)
Bunkertor Bunkertore bestehen aus schweren Elementen um hochenergetische Photonen zu absorbieren und wasserstoffhaltigen Substanzen zum Beispiel Wasser oder Paraffin um Neutronen zu absorbieren. Bunkertore haben ein erhebliches Gewicht und müssen millimetergenau den Zugang versperren können. Ein Notöffnungsmechanismus ist erforderlich, um den Patienten zum Beispiel bei einem Stromausfall bergen zu können.
ohne Bunkertor In Kanada gibt es Bunker mit besonders langem Labyrinth, die ohne Bunkertor auskommen. Reduktion der Rückstreuung von Neutronen kann das Labyrinth mit boriertem Polyethylen ausgekleidet werden. zur
Raumkontrolle Im Therapieraum darf sich bei der Bestrahlung keine Fremdperson aufhalten (Sperrzone) Zur Sicherstellung der Überwachung des Bestrahlungsraums gibt es verschiedene technische Einrichtungen.
  • Überwachungskameras
  • Sprechkontakt: Wechselsprechkontrolle
  • LMO-Prinzip: Last man out.
LMO Last man out. Rechts und links von der Gantry sowie am Ende des Labyrinths befindet sich je ein LMO-Taster. Beim Verlassen des Bunkers muss der Letzte einen LMO-Taster drücken. Daraufhin beginnen die LMO-Taster zu blinken. Nun hat man 30 Sekunden Zeit, um den Bunker zu verlassen und von außen die Tür zuzufahren.

Zusätzlich befindet sich auf der Bunkerseite im Türrahmen ein Sensor, der die Tür wieder öffnet, falls sich jemand beim Zufahren der Tür nähert.
Firmen Pravida Bau

Teil von

Technik der Strahlentherapie Radioonkologie
blauer Punkt

Impressum .....................................................................................Zuletzt geändert am 22.01.2015 6:20